Upright House
- Location: Gwalior, M.P.
- Status: 2018- 2022
- Type: Architecture + Interiors
- Site Area: 2400 Sqft
- Built Up: 8500 Sqft
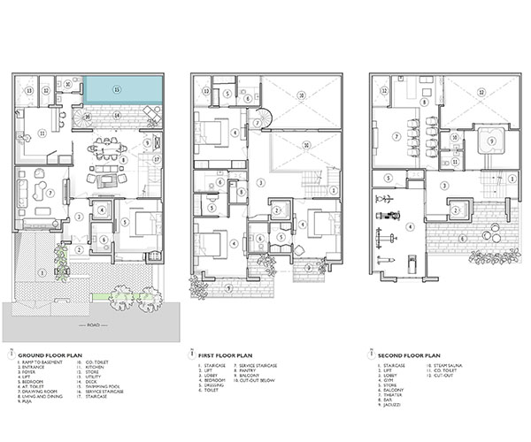
In meeting the challenges of a demanding brief, our client entrusted us with crafting a haven in a narrow and densely populated area. Unfazed, we embraced the challenge, seamlessly weaving architectural sophistication with the requirements of modern living. This exceptional residence serves as a testament to our unwavering commitment to innovation. Envision a sanctuary that transcends spatial constraints—complete with a private swimming pool, a fully equipped gym, and an entertainment room seamlessly integrated into the design. Notably, the house features five thoughtfully designed bedrooms, each serving as a haven of comfort and style. Our approach goes beyond conventional boundaries, showcasing our dedication to pushing the limits of design. This home stands as a beacon of our commitment to creating spaces that not only meet but exceed expectations. Welcome to a residence where every element has been carefully curated to redefine the possibilities of living in a narrow and densely populated urban setting.











