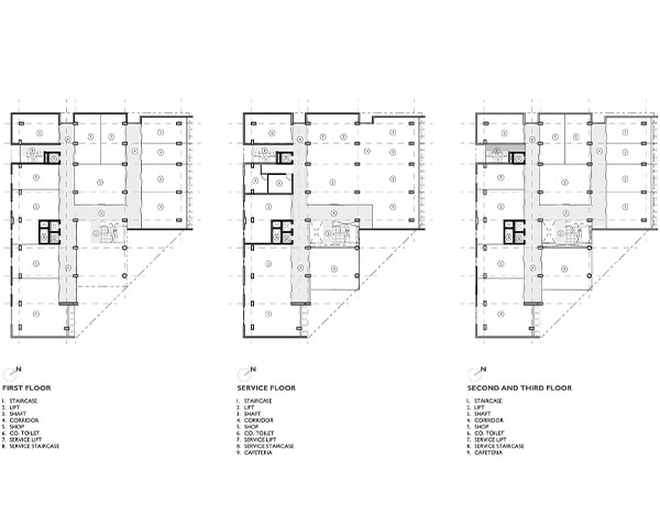
Iconic Plaza

  • Location: Gwalior, M.P.
  • Status: 2022 - Under Construction
  • Type: Design Development
  • Site Area: 17000 Sqft
  • Built Up: 1,15,000 Sqft

In response to the client's desire for an elevated home while maintaining a connection with nature, we conceived a unique dwelling that seamlessly integrates indoor and outdoor living. The result is a house with a stepped garden intricately connected to the drawing room, forming a harmonious link between the interior and the lush surroundings. The pièce de resistance is a triple-height skylight that not only floods the space with natural light but also introduces a captivating sense of drama. This architectural innovation not only uplifts the physical structure but elevates the entire living experience, creating a dynamic interplay between modern luxury and the serene embrace of a connected garden. Moreover, the house's unique positioning along two side roads transforms its facade from linear to gently curved, elevating its aesthetic appeal and creating a captivating fusion of modern luxury and the tranquil allure of a connected garden.

© Studio Aangan